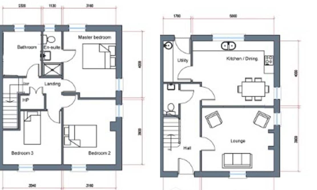
House Type |
The Sullivan |
|---|---|
Style |
Semi-detached House |
Status |
For sale |
Price |
£230,000 |
Bedrooms |
3 |
Bathrooms |
3 |
Receptions |
1 |
Heating |
Gas |
Property Units
| Unit Name | Price | Size |
|---|---|---|
| BRICK, Site 8 The Spires, Bush Road | £230,000 | 1,170 sq. feet |
| BRICK, Site 12 The Spires, Bush Road | Sale agreed | 1,170 sq. feet |
| RENDER, Site 10 The Spires, Bush Road | £230,000 | 1,170 sq. feet |
| Site 6 Bush Road | Sale agreed | 1,170 sq. feet |
Additional Information
The Spires – A Unique Collection of Luxury Homes on Bush Road, DungannonDeveloped by M & L Properties Ltd, The Spires offers an exclusive selection of stunning homes perfectly positioned on Bush Road. This exceptional development combines seclusion and privacy with an elevated site that enjoys panoramic views over the Dungannon skyline.
Ideally located, The Spires provides convenient access to a wide range of local amenities as well as leading primary and secondary schools—making it the perfect choice for growing families.
With a choice of beautifully designed large detached homes and semi-detached bungalows, each property at The Spires is finished to an exceptional luxury turnkey specification. Every detail has been carefully considered to deliver style, comfort, and modern convenience.
Turnkey Specification
General
10-year structural warranty, High-performance, lockable double-glazed PVC windows, High-performance front door with 5-point locking system, Mains gas-fired central heating system with high-efficiency combi boiler, Mains-powered smoke, heat, and carbon monoxide detectors
Kitchen & Utility Room
Bespoke fitted kitchen with choice of luxury units, door furniture, and worktops. Integrated appliances including hob, electric oven, extractor hood, fridge freezer, and dishwasher. Recessed energy-efficient LED spotlights to ceilings. Ceramic floor tiling in kitchen and dining areas. Upstand provided in kitchen
Bathrooms, Ensuites & WCs
Contemporary white sanitaryware with chrome fittings. Chrome towel radiators in bathroom and ensuite. Recessed energy-efficient LED spotlights. Ceramic floor tiling.
Internal Features
Painted interior finish to all walls, ceilings, and woodwork. Panelled internal doors with quality door furniture. Moulded skirting and architrave throughout. Cove cornice ceiling provided as standard to hall, living room and kitchen. Laminate wooden flooring in lounge; carpeted stairs, landing, and bedrooms. Wood-burning stove with hearth in living room. Comprehensive range of electrical sockets, switches, TV, and telephone points
External Features
Front and rear gardens levelled and lawns laid. Tarmac driveway. Rear garden enclosed with vertical timber fencing. A mix of brick and render finishes to complement the traditional design. Outside water tap. Feature lighting to front and rear doors. Paved pathways and patio areas
View more about this property click here
To view other properties click here
Joyce Clarke
2 West Street,
Portadown, BT62 3PD
028 3833 1111
